












Musee Archeologique
Montemor-o-Novo
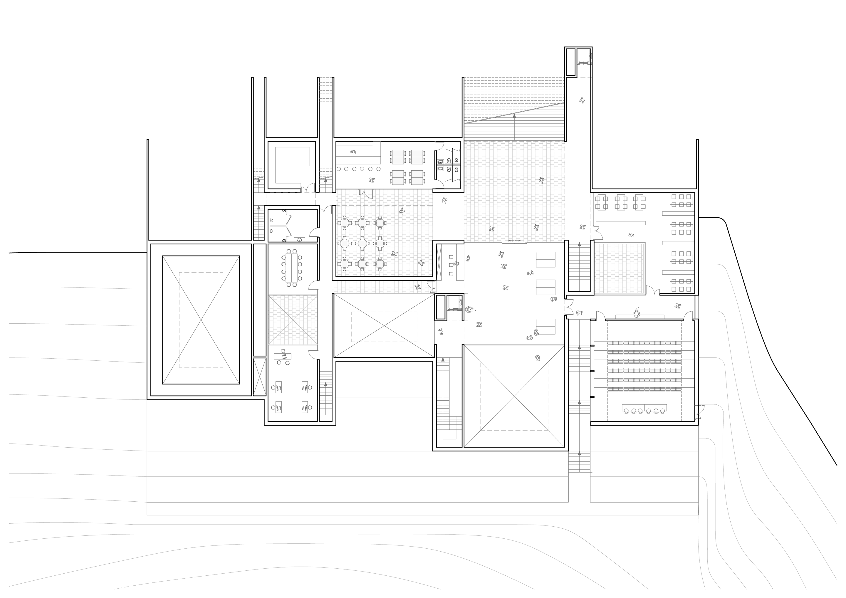
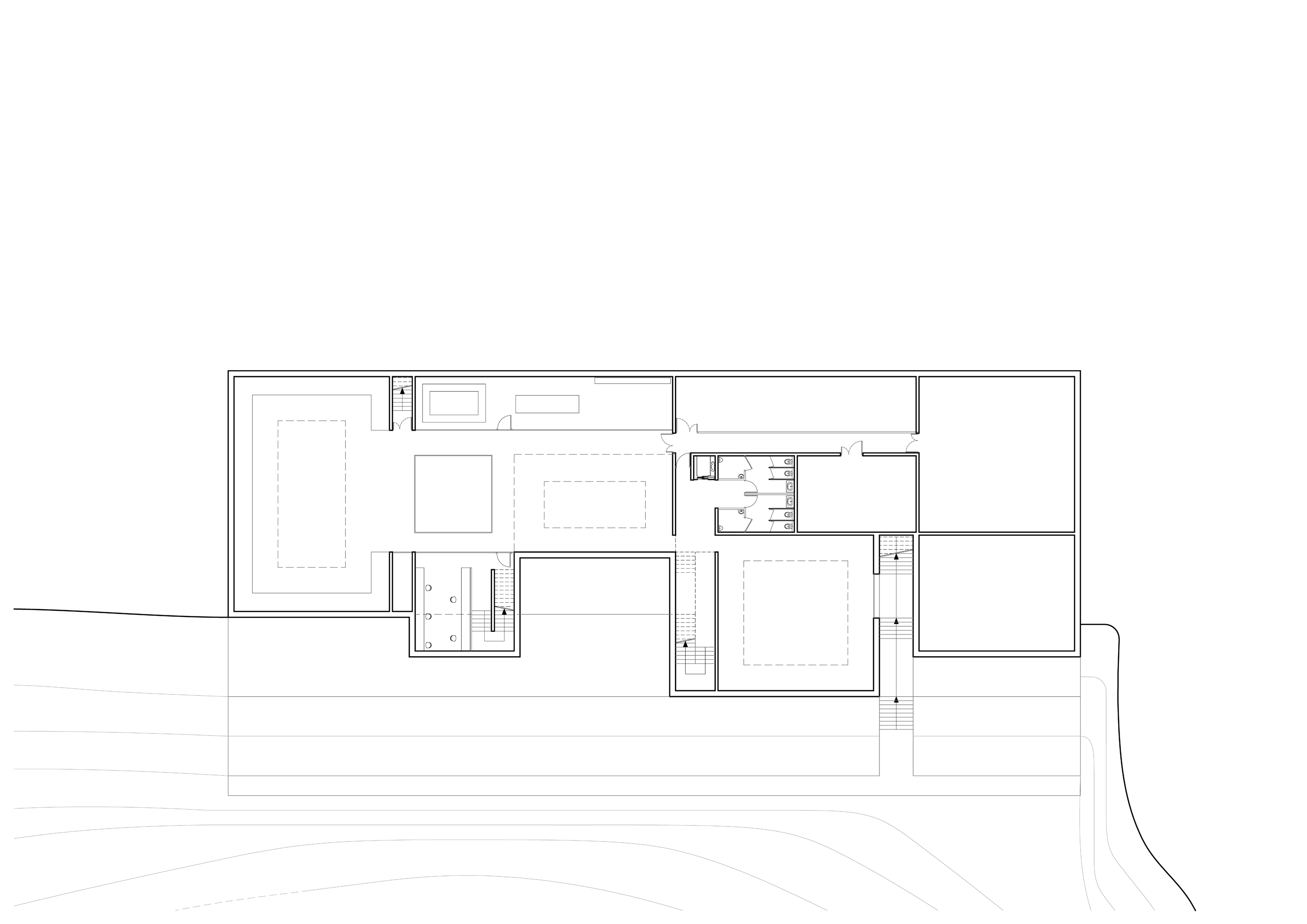
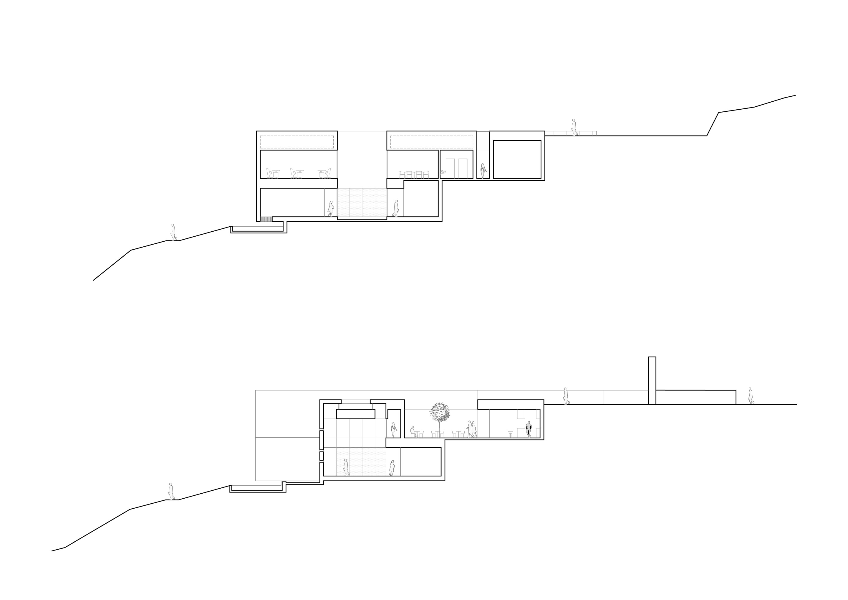
Le futur musée archéologique de Montemor-O-Novo se situe dans l’enceinte du château classé au patrimoine national. Il a pour but de revaloriser ce lieu historique malmené au fil des siècles par les catastrophes naturelles successives. Le projet propose de repenser la relation de cet ensemble fortifié avec l’histoire plus récente de la ville et de questionner le lien avec ses habitants. Implanté sur un promontoire, il jouit d’une situation géographique exceptionnelle qui lui permet à la fois d’être visible depuis l’entrée du site et de surplomber la plaine, laquelle s’étend sur un horizon quasi infini en direction de l’océan. Le projet s’inscrit dans les pentes de façon semi-enterré à l’image des vestiges de l’ancien village qui émergent du sol. Sans rivaliser avec ces derniers, il cherche à communiquer une certaine idée de la permanence par un travail sur la lumière naturelle, l’expérience vécue à l’intérieur du musée, et l’utilisation d’un seul matériau.
Année : 2015
Lieu : Montemor-O-Novo, Portugal
Stade du projet : Concours
Programme : Musée archéologique sur site classé
Maîtrise d’ouvrage : Privé
Maîtrise d’œuvre : Lionel Leotardi Architecture
Coût : 3 471 500 Euros
Surfaces : 1310 m2
Images : Fabrice Zaïni