
































Villa Beatrice
Tassin la Demi Lune
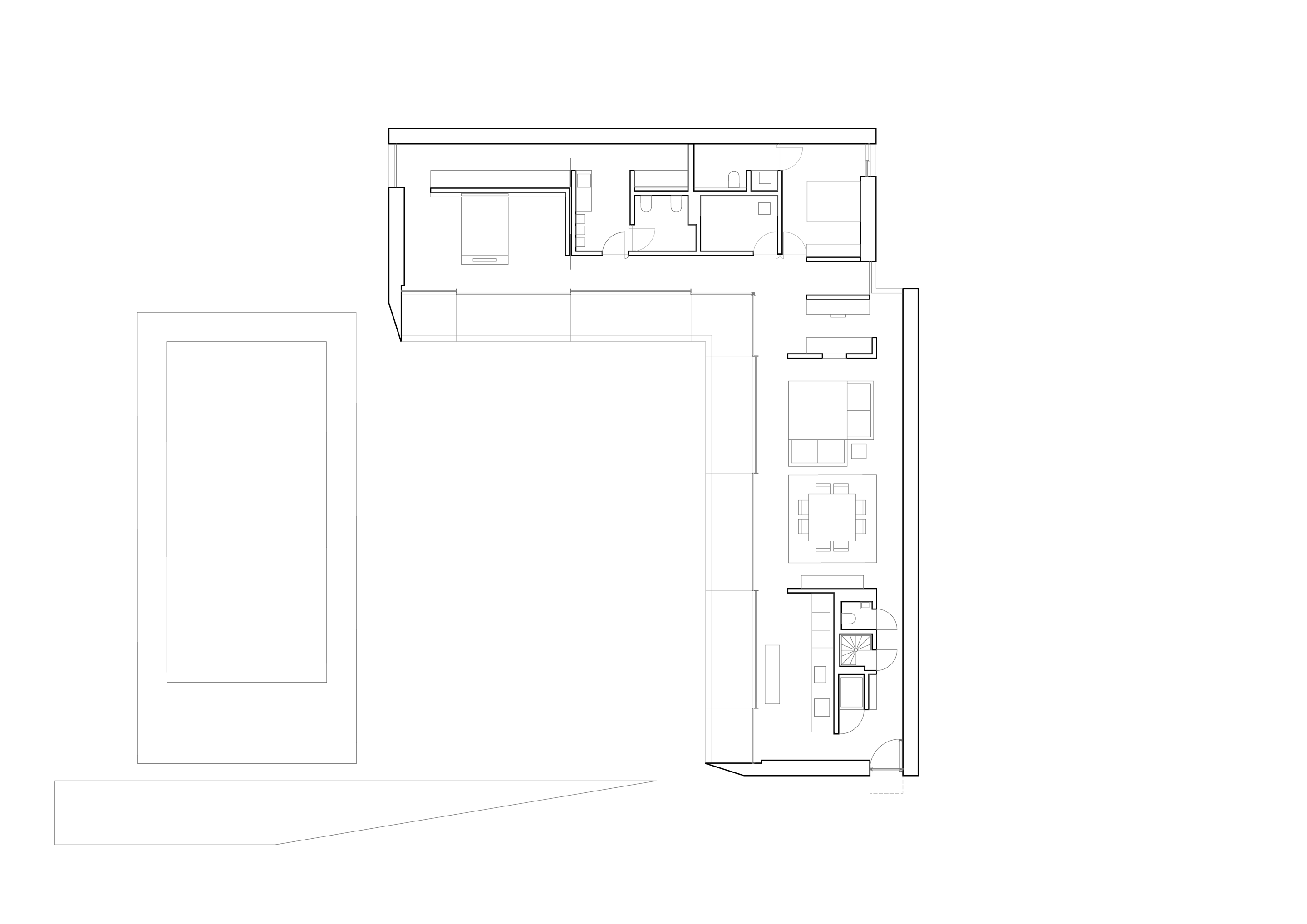
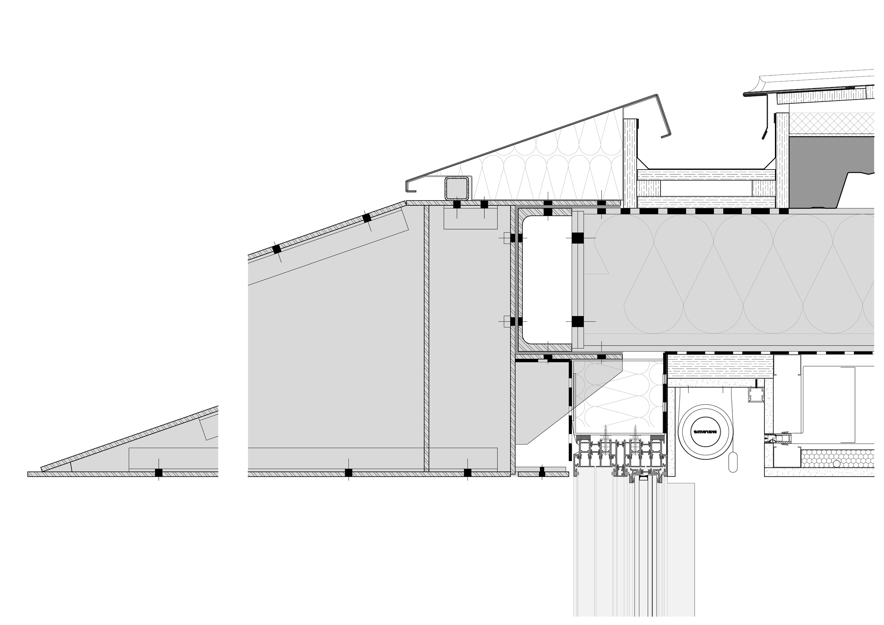
Une maison conçue comme un pavillon de jardin qui s’insère au cœur d’une propriété arborée marquée par caractère patrimonial des constructions et des arbres alentour. Implantée en limite de parcelle, elle prend la forme d’un « L » organisée autour d’un espace central orienté au Sud et à l’Ouest où l’ensemble du programme profite d’une lumière abondante. Attentive à la mise en valeur et la préservation de l’existant, la maison est construite avec un système préfabriqué composé d’une charpente métallique prolongée par un long cadre structurel en acier qui fonctionne à la fois comme un auvent et libère la façade de poteaux tout en apportant sa singularité au projet.
Année : Sept. 2018 – Dec. 2021
Lieu : Tassin-la-Demi-Lune (69), France
Stade du projet : Réalisation – Mission complète
Distinction : Trophée Eiffel 2022 catégorie « Habiter »
Programme : Maison individuelle avec garage
Maitrise d’ouvrage : Privé
Maîtrise d’œuvre : Lionel Leotardi Architecture + Véronique Descharrières Architecte – Bucci & Partners (BET structure & fluide) – Lionel Leotardi architecte co-mandataire et auteur du projet
Surfaces : 250 m² bâtie / 1100 m² parcelle
Coût : N.C.
Performances : RT 2015 – BBC
Photographie : Philippe Roguet