









Museum of World Writing
Incheon
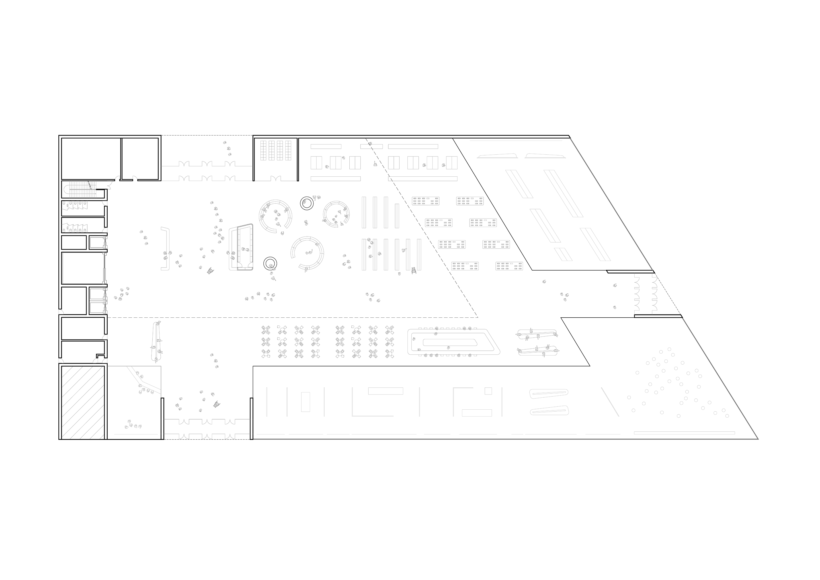
The site for the new National Museum of World Writting offers about 20000m2 plot of land within Central Park Songdo. The project is designed to work with both the city and the park: on one hand the central park’s landscape by extending the public area over the large building’s roof. This activation of the rooftop encourages interactivity between the museum and the park. On the other hand the urban dynamic of the city streets with a long oblique facade on the road. The project extends the Park’s landscape by offering a 6000m2 accessible roof over the entire building. This roof topography offers an extensive walking and sitting area for the visitors who can also benefit from the view over the waterside and the park.
Année : 2017
Lieu : Incheon, Corée
Programme : Musée avec zone d’exposition, stockage, recherche & bureau, public
Stade du projet : Concours
Maîtrise d’ouvrage : Ministère de la culture et du tourisme
Maîtrise d’œuvre : Lionel Leotardi Architecture + Nathanaël Dorent Architecture + Atelier XV
Coût : 55 052 Billion KRW
Surfaces : 15 650 m2